Die Ziegeleiberufschule 

 

Die Planung 

 

Bereits vor 1945 hatte die Ilse-Bergbau AG Zieglerlehrlinge in einer Werkseigenen Berufsschule ausgebildet und im Herbst 1951 wurden in den einzelnen Ziegelwerken die Lehrlingsausbildung wieder aufgenommen.

Etwa zur selben Zeit begannen die Planungen zur Errichtung einer zentralen  Leherausbildungsstätte für die Ziegelindustrie.
Ende 1952 lagen die Entwürfe für ein "Lehrkombinat der Ziegler" vor. Als Standort war Jessen bei Spremberg, wo sich ein Zweigbetrieb der Ziegelwerke befand. Jedoch kamen die Planungen dort nicht zur Ausführung.

       
      
  

     Modell der Zieglerschule von
        Nordosten um 1953

 

                            

Als neuer Standort des Lehrkombinats wurde nunmehr ein Grundstück südlich des Großräschener Ortskern (siehe Bild) vorgesehn, das die Ziegelwerke 1953/54 von der Gemeinde Großräschen erworben hatten. Es lag an der Chaussee nach Senftenberg.

Großräschen, Übersichtsplan der Stadt
mit Ziegelkombinat (blaues Kästchen)

 

Der Bau

Die Planung für das Lehrkombinat in Großräschen wurde 1953 umgehend begonnen. Baukosten wurden laut einer Aufstellung des Entwurfbüros von 1954 mit insgesamt 2.190.000DM veranschlagt. Im wesentlichen kam das Gebäude 1953/54 in zwei Bauabschnitten zur Ausführung. 

                 

                          
        Zieglerschule Lageplan

Dabei wurden offensichtlich zuerst der mittlere Bauteil und danach die Seitenflügel errichtet. Nach dem Abschluss des Innenausbaus, fand am 3.Februar 1956 die Eröffnung des Lehrkombinats statt. 1975 wurde es offiziel in "Betriebsberufsschule der Ziegler" umbenannt. 128 Lehrlinge nahmen ihre Ausbildung auf. 

 

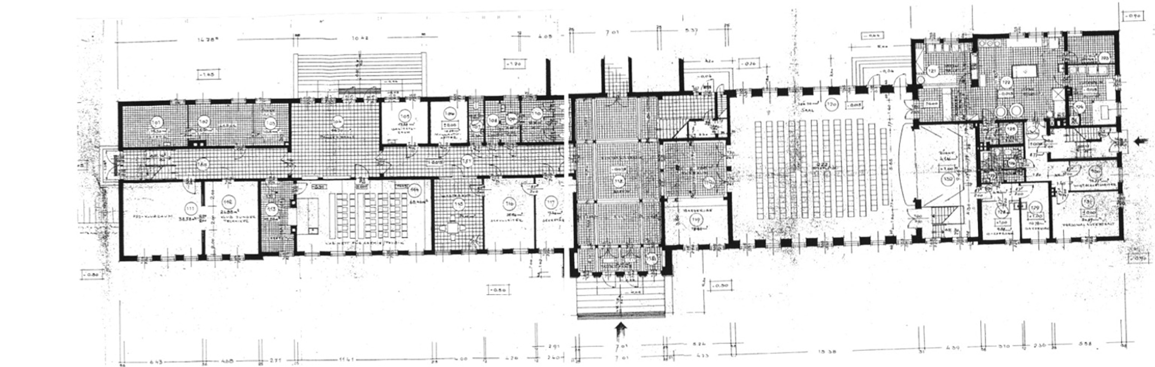
                                                                                                       Ostflügel, Grundriss Erdgeschoss

      Das Imposante am Gebäude sind vorallem die Signets am Nord- und Westteil des Ostflügels.  

 


Signets am Südteil des Ostflügels

                                                                                       
      Signets am Nordteil des Ostflügels

        

Auch der Name der Schule wurde in Zierklinker über dem Haupteingang eingebracht.